İlkadım ilçesi Kıran Mahallesi'nde, 10-11-13 ve 22 ada parsellerde "imarsız" alanda bulunan evler, çevredeki mahallelerde doğal gaz olmasına rağmen hat bağlatamıyor. Yaklaşık 160 hane, doğal gazdan yararlanamadıkları için bir araya gelerek yetkililere seslendi.

Mahalle sakinleri, bulundukları bölgenin ya kentsel dönüşüme alınmasını ya da doğal gaz altyapısının kurulmasını talep etti. Yıllardır kömür ve tüp kullandıklarını belirten vatandaşlar, özellikle yaşlıların hem ısınma hem de yemek pişirme konusunda büyük sıkıntı yaşadığını ifade etti.

"YA GAZIMIZI VERSİNLER YA DA KENTSEL DÖNÜŞÜME SOKSUNLAR"
Özellikle yaşlıların ve evde bakıma muhtaç bireylerin olduğu hanelerin doğal gaz olmaması nedeniyle büyük sıkıntı yaşadığını ifade eden Kıran Mahalle Muhtarı Kemal Saraç, "Mahallemizdeki doğal gaz sıkıntısı yıllardır devam ediyor. Mahalle sakinlerinin bir an önce doğal gaza ulaşmasını istiyoruz. Ya gazımızı versinler ya da kentsel dönüşüme sokacaklarsa soksunlar. Yaklaşık 160 hane Samsun'un merkezinde doğal gaz hizmeti alamıyor. Bir an önce bu sıkıntının çözülmesi, vatandaşlarımız açısından oldukça yararlı olacaktır" dedi.

Mahalle sakinleri, hemen karşılarındaki ve çevredeki binalarda doğal gaz bulunmasına rağmen kendi evlerinde olmamasının kabul edilemez olduğunu söyledi. Şehrin merkezinde yıllardır kömür ve tüple uğraştıkları için büyük sıkıntı yaşadıklarını belirten vatandaşlar, problemlerinin çözülmesini talep etti.

"SAMGAZ'DAN AÇIKLAMA"
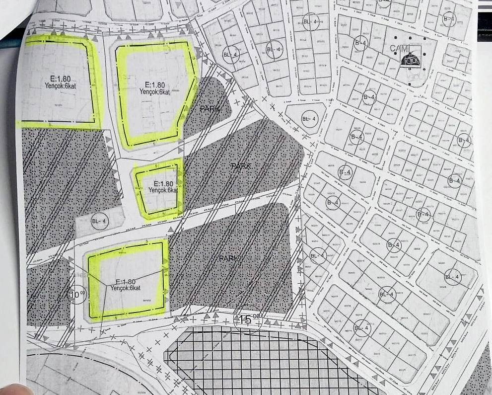
Doğal gaz hizmeti veren SAMGAZ yetkilileri ise konu hakkında şu açıklamayı yaptı: "Kıranköy Mezarlığı ile Ankara Bulvarı arasında yer alan bölüm, heyelan riski nedeniyle kentsel dönüşüm alanı ilan edilmiş, Toplu Konut İdaresi tarafından inşa edilen yapılarla dönüşüm tamamlanmış ve bu yeni konutların doğal gaz çalışmaları gerçekleştirilmiştir. Bunun yanında, Ankara Bulvarı’na cepheli kısımda yapılan imar düzenlemesiyle yeni yapılar oluşmaya başlamış, bu bölgenin doğal gaz arzı da 2025 yılı içinde tamamlanmıştır. Toplu Konut İdaresi konutları ile imar çalışması yapılarak doğal gaz sağlanan bölgenin arasında kalan kesim ise daha önce heyelan alanı olarak ayrıldığı için imar planı dışında tutulmuş durumdadır. Günümüzde bu alan için 1/5000’lik imar planı hazırlanmış olsa da 1/1000’lik uygulama imar planları henüz tamamlanmamıştır. Bu nedenle bölgedeki konutlar hâlen plansız alanda bulunmakta ve mevcut ulaşım yolları imar planında yol olarak görünmediğinden doğal gaz dağıtım çalışması yapılamamaktadır."
Yorumlar
Kalan Karakter: